Przejdź do głównej zawartości

Zapytanie ofertowe

Regał paletowy

Wypełnij jak najwięcej pól, a następnie kliknij "Wyślij zapytanie". Dodatkowe informacje dotyczące rozszerzonego zapytania lub indywidualnej oferty można wprowadzić na końcu formularza w sekcji "Dodatkowe informacje".

Ogólne informacje:
Co chcesz przechowywać?
Konstrukcja regałów
Instalacja/użytkowanie:
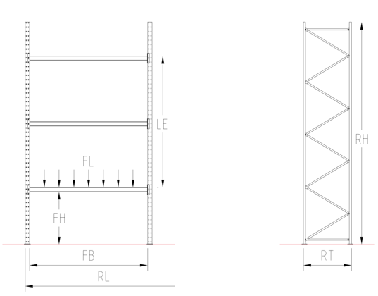
Wymiary regałów
(Opcjonalnie, objaśnienie jednostek znajduje się w legendzie).
Nośność:
Udźwig (objaśnienia jednostek znajdują się w legendzie)
Do montażu na zewnątrz z dachem:
Kolor regałów:
Montaż:
Skorzystaj z fachowej instalacji przez nasze przeszkolone zespoły montażowe OHRA.
Dodatkowe informacje:
Absenden